Dual Accommodation in Cherrybrook Tech Catchment

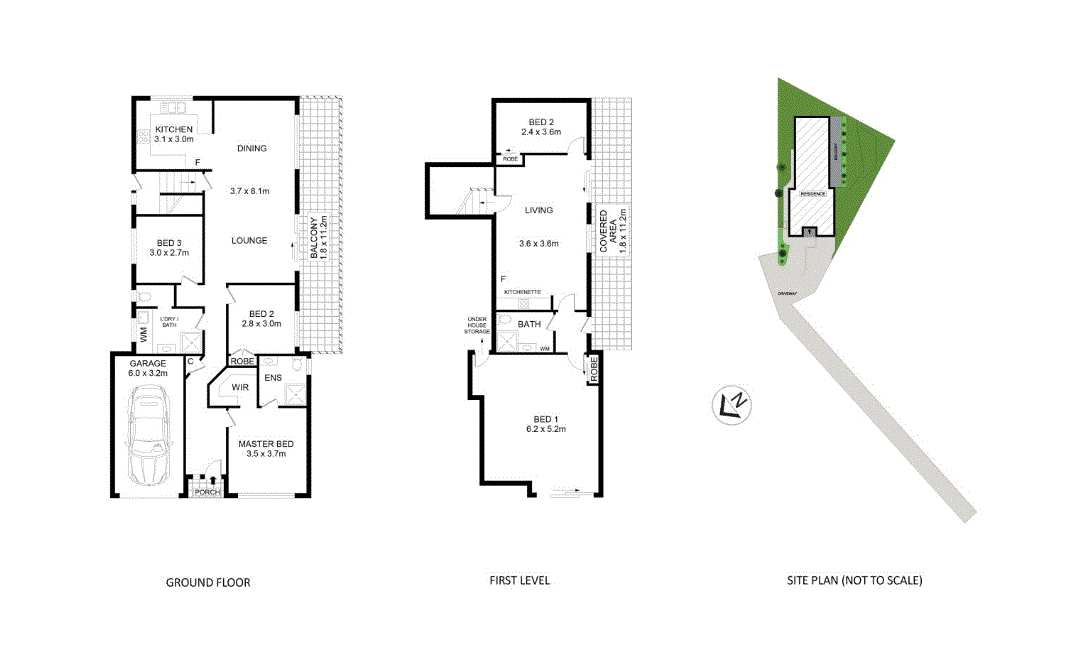
Unique home offering a variety of options given its configuration of 2 kitchens, 3 bathrooms and potentially 5 bedrooms. This dual residence, with many modern inclusions and abundance of living space is ideal for families needing separate quarters as a teenage retreat or in-law accommodation.
-    2 kitchens both with modern appliances
-    3 stylish modern bathrooms (incl ensuite)
-    5 bedrooms (1 ideal as home office/business with direct access for clients)
-    Open plan living zones
-    Generous balcony with district views
-    Low maintenance lawns
-    1 garage and 2 driveways
-    3 split system AC
-    Catchment for Cherrybrook Technology High School(Tenant to confirm)
Near:
-    1.6km/3 min drive to Cherrybrook Technology High School
-    900m/ 2min drive to IGA Oakhill Shopping Mall
-    1.7km/ 4min drive to Oakhill College
-    2.2km /4 min drive to Cherrybrook Village Shopping Centre
-    3.1 km/6 min drive to Cherrybrook Metro 
-    4.7km / 9min Castle Towers Shopping Centre

This home is located in a central position and in easy access to great schools, retail district and transport. Its floorplan can cater for a diverse range of needs. Call Julie Lepagier (1158150) today on 0427 502 730 for further information. (Note: Please provide a contact number with all email enquiries)  
“ LePage Property provide information  which is understood to be accurate and true yet take no responsibility and disclaim all liability for any errors, inaccuracies and misstatements. It is the tenant’s and general public’s responsibility to source their own information and rely on their own research for accuracy prior to engaging in a tenancy agreement.”

 

5 3 1
Available Leased
Address 19A David Rd, Castle Hill
Price Leased
Property Type Rental
Property ID 153
Category House

Agent Details

Julie Lepagier photo

Julie Lepagier

0427502730
View Profile